Beschrijving
Wonen in de historische sfeer van Zierikzee, maar met het comfort en de duurzaamheid van een moderne woning? Het kan! Deze jonge tussenwoning uit 2007 ligt op een steenworp afstand van de Noordhavenpoort en de gezellige haven. Het is een kleinschalige woonwijk op een toplocatie. Volledig geïsoleerd en voorzien van energielabel A, dus klaar voor de toekomst en gunstig in energielasten. Het huis is netjes onderhouden, sfeervol afgewerkt en direct te betrekken.
De ligging is al net zo aantrekkelijk: in een rustig, doodlopend hofje met groen. Hier geniet je van stilte en ruimte, terwijl je de levendige binnenstad binnen een paar minuten bereikt. Een betere combinatie bestaat bijna niet. Met drie slaapkamers op de eerste verdieping en een vaste trap naar de tweede verdieping – perfect om te gebruiken als een vierde (slaap)kamer – biedt dit huis volop mogelijkheden voor gezinnen, thuiswerkers of hobbyisten. En juist hier, aan de rand van de stad, komt zelden een woning als deze te koop. Appartementen zijn er genoeg op Rollandthof, maar een gezinswoning als dit? Echt een buitenkans!
Indeling
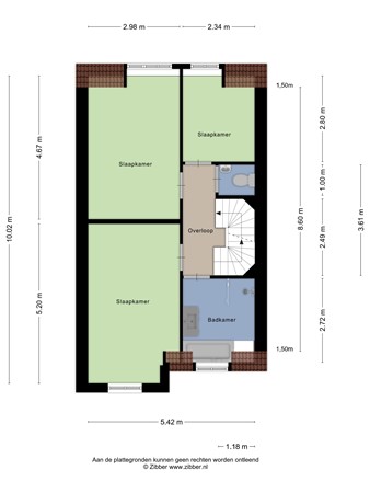
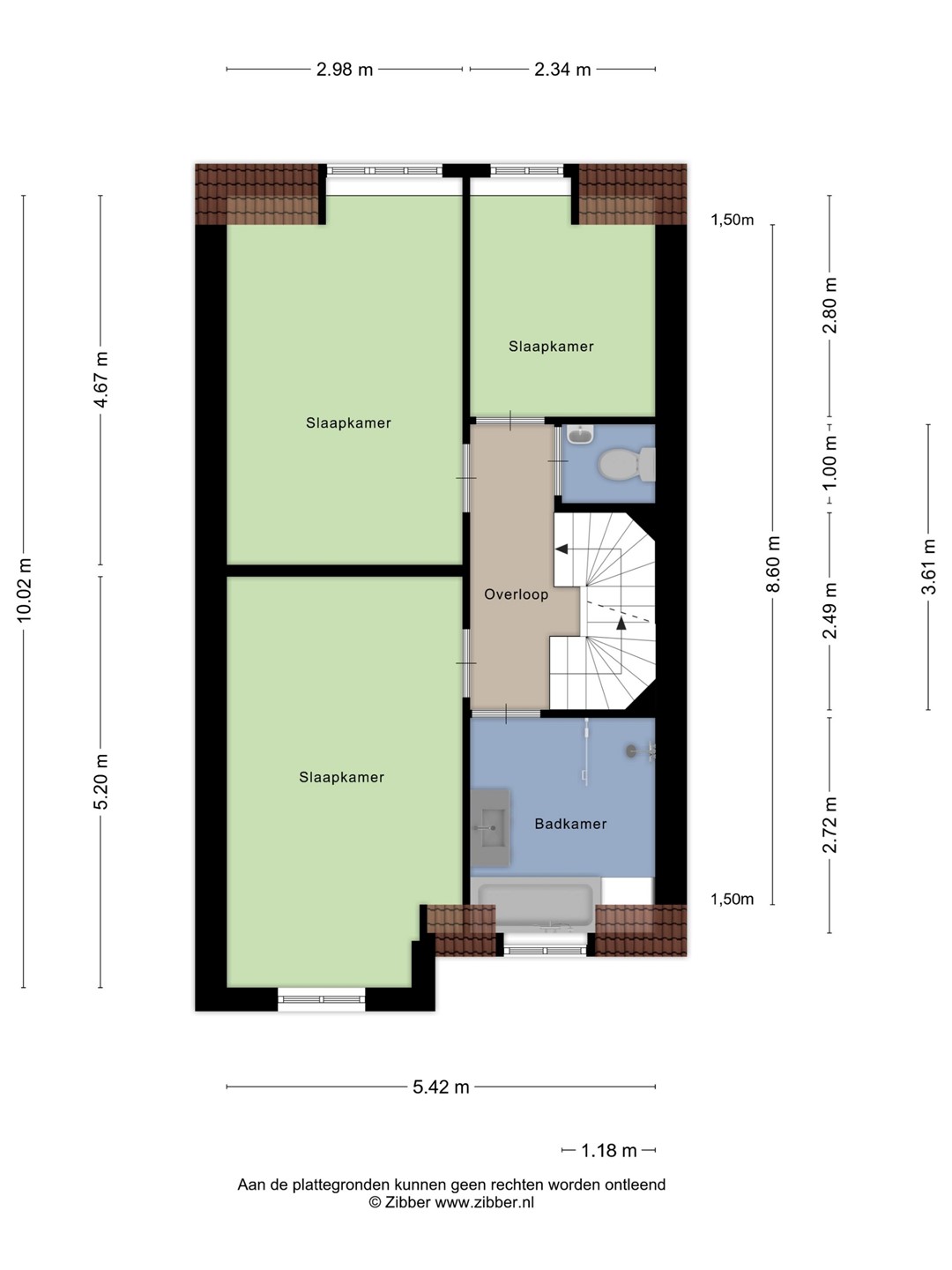
Bij binnenkomst sta je in de hal met toilet en trapopgang. De woonkamer voelt ruim en licht, met een handige trapkast en openslaande tuindeuren naar de achtertuin. De hoekkeuken aan de voorzijde geeft een knus uitzicht op het groene hofje. Op de eerste verdieping vind je een overloop, drie prettige slaapkamers, een apart toilet, super handige vaste opbergkast en een complete badkamer met ligbad, douche en wastafelmeubel. De tweede verdieping is bereikbaar via een vaste trap en kan eenvoudig worden ingericht als vierde (slaap)kamer. Buiten wacht een fijne tuin met terras en groen, een stenen berging en een vrije achterom.
Bewoners van Rollandthof kunnen gebruikmaken van een ontheffingsvergunning op kenteken voor slechts € 37,15 per jaar, waardoor parkeren in de eigen omgeving gemakkelijk en betaalbaar is. Voor bezoekers is er bovendien ruim voldoende parkeergelegenheid beschikbaar in de nabije omgeving, waar met een blauwe parkeerschijf kan worden geparkeerd.
Zierikzee
Wonen in Zierikzee betekent genieten van de charme van een historische stad met een warme en uitnodigende sfeer en alle voorzieningen dichtbij. Het gezellige centrum biedt een ruim aanbod aan winkels, restaurants en cafés, terwijl er ook goede scholen, sportfaciliteiten en zorgvoorzieningen aanwezig zijn. Daarnaast is de stad omgeven door water en natuur, waardoor je er zowel de levendigheid van de stad als de rust van de Zeeuwse omgeving ervaart. Dit maakt Zierikzee een plek met een hoog woongenot, geschikt voor jong en oud.
Enthousiast geworden? Graag nodigen wij je uit om de woning te komen bezichtigen. Neem hiervoor contact op met ons kantoor.