Beschrijving
Prachtige Lodge te koop op Zindering aan Zee in Renesse!
Zindering aan Zee is een prachtig project dat is gerealiseerd op Camping de Brem. Stuk voor stuk stralen de lodges luxe uit. De lodges op Zindering aan zee zijn gebouwd van hoogwaardige en onderhoudsarme materialen, de buitenbekleding is gemaakt van tropisch hardhout.
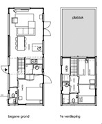
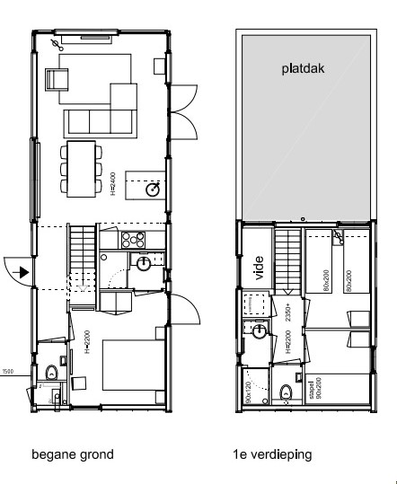
Zodra je de Lodge Jacques Calipso op kavel 4 binnenstapt, komt de luxe en rust op je af. Bij de indeling van de lodge is rekening gehouden met de ruimtelijkheid. De open trap geeft een extra dimensie aan de ruimte doordat de hoogte van de lodge wordt benadrukt. De lodge heeft een royale woonkamer met openslaande deuren naar het terras. De tuin ligt aan de bosrand en is een heerlijke plek om van de zon te genieten en lekker te relaxen. De mooie keuken heeft een groot werkblad, inductieplaat, combi-oven, vaatwasser en koelkast.
Er zijn maar liefst 3 slaapkamers waarvan een op de begane grond met een badkamer ensuite. De andere twee slaapkamers vind je op de eerste verdieping, waar ook een badkamer en een apart toilet te vinden zijn. Er is op de verdieping een ruimte om te wassen/drogen, maar dat kan ook in de berging gerealiseerd worden zoals hier het geval is. De bijpassende berging is ruim 9 m2, deze past perfect bij de stijl van het chalet. De lodge is heerlijk comfortabel in de winter en in de zomer, er is namelijk niet alleen centrale verwarming maar er zijn ook 3 airco’s in de lodge.
Verhuur
De lodges op Zindering aan zee zijn uitermate geschikt voor de verhuur. Het is mogelijk de lodges door camping de Brem te laten verhuren. Je kunt zelf beslissen wanneer je van de lodge wil genieten, dat wil zeggen: komen en gaan wanneer je wilt.
Zie jij het al voor je? Deze lodge heeft alle ingrediënten voor een heerlijke vakantiestek of tweede thuis. Maak een afspraak en we zien elkaar in Renesse bij de prachtige lodge op kavel 4!
Jaarhuur en info
De lodges op Zindering aan zee zijn het hele jaar toegankelijk. De kavel is 266m2 en de jaarhuur 2026 bedraagt €6.917,24,-. Dit bestaat uit huur van de jaarplaats, gebruik van alle faciliteiten op het park(zoals een verwarmd openluchtzwembad) en vastrecht van nuts-aansluitingen zoals stroom, water en riolering. Bijkomende kosten zijn de toeristenbelasting, internet en het verbruik van gas, water en elektra. De hond is welkom, mits de kavel goed omheind is.
Camping De Brem
Camping De Brem is de ideale bestemming om met het hele gezin te genieten van de zon, zee en strand. Deze familiecamping bestaat al meer dan 35 jaar en vinden persoonlijkheid, dienstbaarheid en kwaliteit belangrijk. De camping is gelegen op een unieke locatie in Renesse grenzend aan het natuurgebied ‘de Vroongronden’ en op loopafstand van de duinen en de mooiste stranden.