Beschrijving
Wonen op een plek waar rust, ruimte en comfort perfect samenkomen? Dit is je kans! Aan de rand van het dorp ligt deze charmante halfvrijstaande woning, verscholen in een rustige, doodlopende straat. Aan de voorzijde geniet je van een prachtig vrij uitzicht over een sfeervolle weide – elke dag een uitzicht om blij van te worden. Met energielabel A én een royale, recent gebouwde houten schuur (met verdieping) van maar liefst 41 m² is dit een woning die écht alles heeft.
Duurzaamheid en comfort gaan hier hand in hand. De woning is geïsoleerd met dak- en spouwisolatie, HR++ glas en zonnepanelen. Binnen vind je volop leefruimte, met drie fijne slaapkamers en een praktische indeling die perfect aansluit op het dagelijks leven. De eigen oprit en de grote schuur met verdieping bieden bovendien talloze mogelijkheden – van hobbyruimte tot werkplek of extra opslag.
Een heerlijke plek waar je elke dag geniet van rust, vrijheid en een topligging!
Indeling
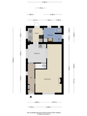
Via de voortuin en de oprit bereik je de entree van de woning. In de hal vind je de trapopgang en toegang tot de woonkamer. De woonkamer loopt open door naar de voorzijde van de woning, wat een pracht vrij zicht naar buiten als je in de woonkamer zit! Als je verder door loopt tref je de keuken aan met achterdeur en toegang tot de badkamer en bijkeuken. In de badkamer tref je een separaat toilet, inloopdouche, wastafelmeubel en witgoedopstelling aan.
Op de verdieping kom je uit op de overloop, met toegang tot drie slaapkamers. De ouderslaapkamer is aan de voorzijde gelegen en met vrij zicht op de weide. Vanuit de slaapkamer aan de achterzijde is het dakterras bereikbaar.
Kenmerken van de Omloopsweg 7:
- Voorzien van zonnepanelen
- Dakisolatie en spouwmuurisolatie
- HR++ glas
- Eigen oprit
- Drie slaapkamers op de verdieping
- Nieuw gebouwde schuur met verdieping ca. 41 m2 (2019)
Plan jouw bezoek!
Zie jij jezelf hier al wonen? Wacht dan niet langer en neem contact op met ons kantoor. We nodigen je graag uit voor een bezichtiging.