Beschrijving
Luxe chalet te koop aan de Zeeuwse kust, Westenschouwen
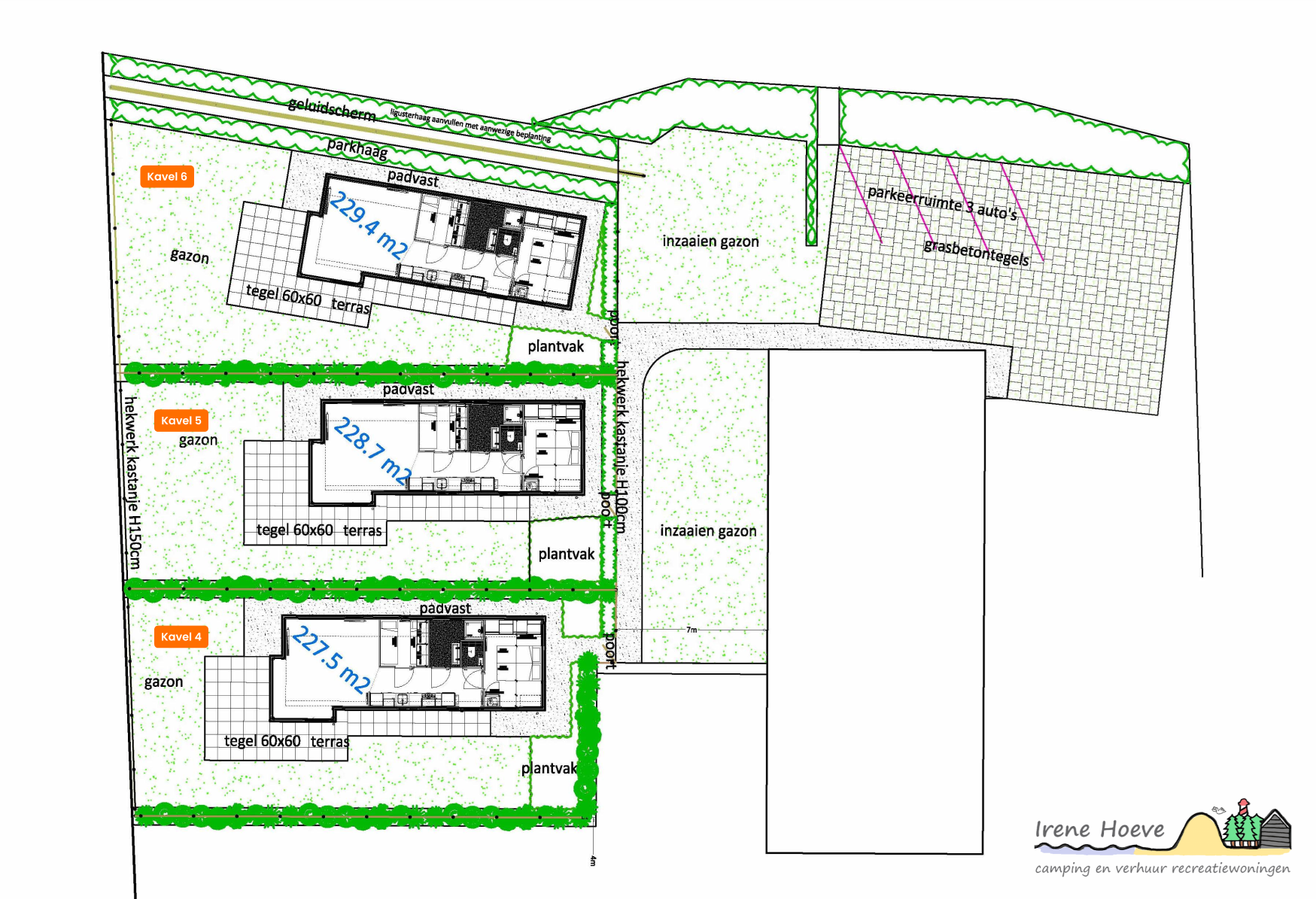
De Irenehoeve is een kleinschalig chaletpark met ruime kavels en prachtige chalets. Hier ga je lopend naar het strand, met de fiets naar het dorp, vertier op het hele eiland, dit parkje kun je wel een superstek noemen.
Het comfortabele chalet, op kavel 5 is gebouwd van hoogwaardige materialen. De hoge nok en mooie erker in de woonkamer geven een enorm ruimtelijk gevoel. Verder is er de complete keuken met veel kastruimte, vaatwasser, inductiekookplaat, combimagnetron en koel- vriescombinatie.
De ouderslaapkamer is ingebouwd over heel de breedte van het chalet waardoor er ruimte is gecreëerd voor ruime inbouwkasten met zelfs plaats voor de wasmachine. De tweede slaapkamer heeft naast goede bedden ook voldoende kastruimte. De badkamer is praktisch ingedeeld met een ruime douchecabine en extra breed toiletmeubel. Het toilet is in een aparte ruimte.
De buitenbekleding van het chalet is van Waxedwood, wat bijzonder mooi oogt. Waxedwood is ontwikkeld om de levensduur en uitstraling van houtproducten naar een hoger niveau te brengen. Waxedwood is verduurzaamd hout met een waterafstotende werking. Door het hout te impregneren en waterwerend te maken ontstaat hout met verminderd krimp- en zwelgedrag.
De eigenaren van de Irenehoeve hebben ervoor gekozen om gasloos te gaan recreëren, het chalet is daarom aangepast met de nieuwste technische snufjes. Denk aan elektrische radiatoren met ingebouwde thermostaat, inductie kookplaat en warmwaterboiler. Ook is er een voorbereiding gemaakt voor het aansluiten van een laadpaal. De extra ingebouwde airco is natuurlijk een meerwaarde, koelen of verwarmen wanneer jij het nodig vindt.
De tuin is ruim en natuurlijk aangelegd. In plaats van een apart tuinhuis heeft iedere gast de beschikking over een eigen berging in de grote schuur van de Irenehoeve en een eigen parkeerplaats op korte afstand van het chalet.
Genieten van je eigen stek maar ook van de omgeving…17 km strand, honderden hectares bos- en duingebied, beschermd natuurreservaat, de Oosterschelde of het pittoreske Burgh-Haamstede... je vindt het allemaal net buiten dit kleinschalige parkje. Zou dit dé plek zijn waar je met de hele familie herinneringen gaat maken? Maak dan een afspraak en we vertellen je graag alle details.
Jaarhuur & Info
De Irenehoeve is het hele jaar geopend, de jaarhuur 2026 bedraagt €6467.33,--. Dat is inclusief bergruimte in de grote schuur, toeristenbelasting, internet en kabeltelevisie, onderhoud hagen en afvalverwerking. Niet inbegrepen is het verbruik van water, elektriciteit en onderhoud installaties. Verhuur is niet toegestaan en de hond is welkom.