Beschrijving
Wat een plaatje, wat een romantisch kiekje!
Zodra je de voordeur opent van deze vrijstaande jaren ’30 woning, voel je het direct: hier woont de charme van toen in perfecte harmonie met het comfort van nu. Deze woning is uitermate netjes onderhouden, instapklaar, voorzien van 8 zonnepanelen, een garage, eigen oprit en een prachtige nieuwe aanbouw met slaapkamer en badkamer op de begane grond – ideaal voor levensloopbestendig wonen, kantoor of speelkamer. Met in totaal vier slaapkamers, een heerlijke groene en zonnige tuin en dat alles midden in de kern van Burgh-Haamstede, is dit een zeldzame vondst waar sfeer, gemak en locatie samenkomen.
De jaren ’30 sfeer komt je hier werkelijk tegemoet: authentieke details, een warme uitstraling en een romantische ambiance maken dit huis tot een echt droomplaatje. En dat allemaal op een steenworp afstand van het vernieuwde, gezellige centrum van Burgh-Haamstede, met haar sfeervolle terrassen, winkels en levendige dorpshart. Trek de wandelschoenen aan, want binnen enkele minuten sta je in het uitgestrekte duingebied waar je eindeloos kunt dwalen en genieten van rust, natuur en zee.
Feiten op een rij:
- De woning is voorzien van 8 zonnepanelen
- De spouw is geïsoleerd
- Aanbouw met slaapkamer met douchegelegenheid uit 2019
- Buitenzijde laatst geschilderd in 2022
- Voorzien van 3 slaapkamers
- Eigen oprit met praktische garage
Indeling
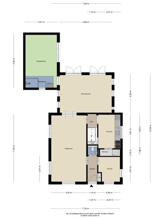
Binnenkomst via een sfeervolle hal met toegang tot het toilet en een kamer die momenteel in gebruik is als kantoor. De woonkamer is licht, ruim en hoog, met authentieke details en een fijne sfeer. De dichte, knusse keuken beschikt over een handige voorraadkast en inbouwapparatuur. Aan de achterzijde is de zithoek gesitueerd met openslaande tuindeuren naar de zonnige tuin. Op de begane grond bevindt zich tevens een ruime slaapkamer met eigen doucheruimte en wastafel – perfect voor gelijkvloers wonen.
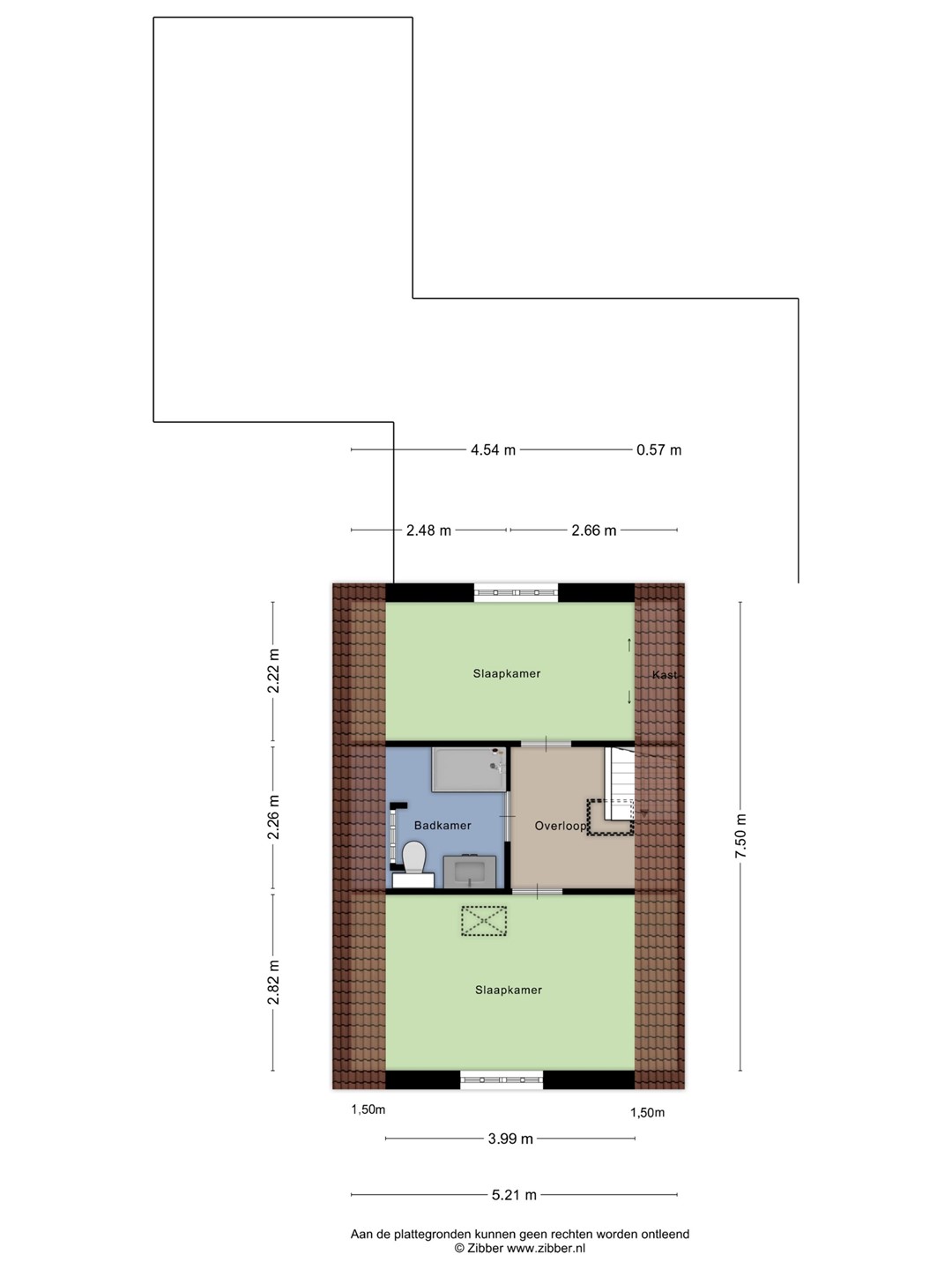
Op de eerste verdieping vind je een overloop, een badkamer met toilet, douche en wastafel en twee slaapkamers aan de voor- en achterzijde. De praktische bergzolder biedt extra opbergruimte.
Buiten geniet je van een eigen oprit, een stenen garage met vliering, een ruime, groene tuin met houten berging en volop privacy. De tuin ligt op het zuidwesten, wat zorgt voor zon van ’s morgens vroeg tot in de late avond – de ideale plek om te ontspannen met een goed glas wijn of een barbecue.
Enthousiast geworden? Graag nodigen wij je uit om de woning te komen bezichtigen. Neem hiervoor contact op met ons kantoor.