Beschrijving

Op een absolute toplocatie nabij de iconische Dikke Toren vind je dit karaktervolle pand met een bijzondere geschiedenis. Ooit in gebruik als pakhuis van Broodboetiek Boot en de afgelopen 30 jaar bekend als kapsalon, ademt deze plek sfeer en authenticiteit. Dankzij de fijne parkeergelegenheid direct om de hoek is de bereikbaarheid uitstekend — ideaal voor zowel wonen als werken op een levendige en centrale locatie.

Wat dit object extra uniek maakt, is de veelzijdige bestemming: je mag hier ook gewoon wonen! Een mooie kans om een karakteristiek pand naar eigen wens in te richten, midden in de stad en met alle voorzieningen binnen handbereik. Een plek waar historie, locatie en mogelijkheden samenkomen!

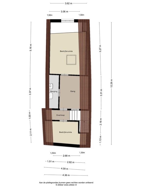
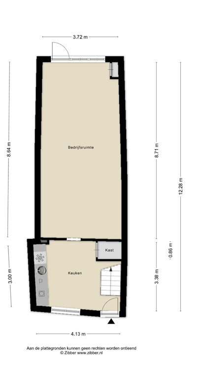
Indeling
Via de entree stap je binnen in de voormalige kapsalonruimte, waar direct de royale afmetingen en het open karakter opvallen. De grote raampartij aan de voorzijde zorgt voor veel natuurlijke lichtinval en biedt volop mogelijkheden, bijvoorbeeld voor het creëren van een entree of hal met glazen pui. Aan de achterzijde bevinden zich de keuken, toiletruimte en de trapopgang naar de verdieping.

Op de eerste verdieping tref je aan de voorzijde een ruime kamer met prettige afmetingen en veel licht. Aan de achterzijde ligt een tweede kamer die, met het plaatsen van een dakvenster of raam, uitstekend geschikt is als tweede kamer. Tussen beide ruimtes bevindt zich een overloop met vaste kasten en praktische bergruimte. Het pand beschikt momenteel nog niet over een badkamer, waardoor je deze volledig naar eigen inzicht kunt realiseren.

Aan de voorzijde kun je eenvoudig een bankje plaatsen om heerlijk van het zonnetje te genieten. Het pand beschikt niet over een achterom of buitenruimte aan de achterzijde.

Bestemmingsplan
De bestemming van het pand is ‘Gemengd’, wat zorgt voor een brede gebruiksmogelijkheid. Volgens het geldende bestemmingsplan is de locatie geschikt voor kantoren, dienstverlening, maatschappelijke voorzieningen, wonen en bedrijfsactiviteiten behorend tot categorie 1.

Deze veelzijdige bestemming maakt het object uitermate interessant voor een brede doelgroep. Of je nu denkt aan een kantoorruimte, praktijk, atelier, onderneming of een comfortabele woning: binnen de bestemming zijn diverse invullingen mogelijk. Raadpleeg hiervoor altijd het geldende bestemmingsplan. 

Enthousiast geworden? Graag nodigen wij je uit om de woning te komen bezichtigen. Neem hiervoor contact op met ons kantoor.

Kenmerken