Beschrijving
        
Ruime twee-onder-één-kapwoning met serre, garage en sfeervolle overkapping!
Deze toffe woning prijkt aan de Kamillestraat 14 in Scharendijke! Deze verrassend ruime twee-onder-één-kapwoning biedt alles wat je zoekt: een stenen garage, een heerlijke serre, een sfeervolle houten overkapping en een royale master bedroom met en-suite bad en wastafel. Hier woon je in een fijne woonwijk met alle voorzieningen van het dorp binnen handbereik én volop ruimte.
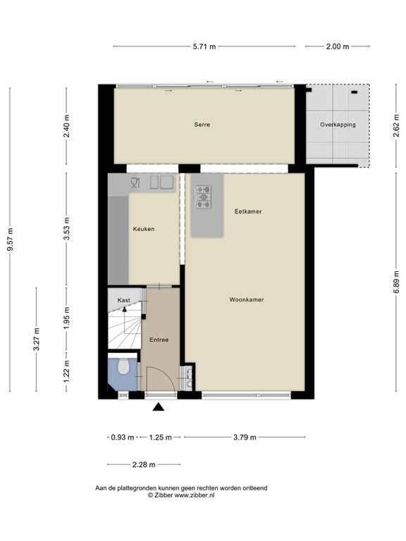
Bij aankomst valt direct de eigen oprit op, waar je jouw auto gemakkelijk parkeert. Voor extra gemak is er een extra houten overkapping op de oprit, perfect voor het stallen van fietsen. Binnen kom je in de ruime en lichte woonkamer met airconditioning met grote raampartijen, een open keuken en een aangebouwde serre waar je het hele jaar door geniet van een fijne zitplek met uitzicht op de tuin.
Op de eerste verdieping vind je drie kamers, een badkamer met douche en wastafel en een aparte wasruimte. Aan de voor- en achterzijde zijn twee grote slaapkamers gesitueerd met vaste kastruimte. Aan de achterzijde vind je de derde kleinere kamer. De tweede verdieping is een echte verrassing! Dankzij twee dakkapellen is hier een prachtige en royale slaapkamer gerealiseerd, compleet met en-suite bad en wastafel.
De zonnige tuin op het zuidwesten biedt een heerlijke plek om te ontspannen. Hier vind je een sfeervolle houten overkapping en een directe toegang tot de ruime garage (ca. 21 m²).
Bijzonderheden:
- Ruime woonkamer met airconditioning – altijd een aangename temperatuur
- Nieuwe kunststof kozijnen (2025) aan de achterzijde op de 1e verdieping
- Energiezuinige Remeha cv-ketel uit 2021
- Kunststof serre aangebouwd voor extra woonplezier
- Een fijne houten overkapping in de 
- Twee dakkapellen op de 2e verdieping, wat een ruimte!
Enthousiast geworden? Graag nodigen wij je uit om de woning te komen bezichtigen. Neem hiervoor contact op met ons kantoor.
         
     
        Plattegronden
            
                
                
                    170715130_477280_kamill_begane_grond_first_design_20250328_99fe37.jpg
                
             
            
                
                
                    170715130_477280_kamill_eerste_verdiepi_first_design_20250328_6917f2.jpg
                
             
            
                
                
                    170715130_477280_kamill_tweede_verdiepi_first_design_20250328_3da798.jpg
                
             
            
                
                
                    170715130_477280_kamill_berging_first_design_20250328_a5beb0.jpg