Beschrijving

Mooi nieuw chalet (C25) te koop in Burgh-Haamstede!

Dit prachtige nieuwe chalet staat nu nog de showroom van Zeeuwse Chalets maar wordt nog voor het nieuwe seizoen op de gezellige familiecamping Ginsterveld in Burgh-Haamstede geplaatst. Het chalet heeft 2 slaapkamers en daarom prima geschikt voor een gezin met kinderen. Op korte afstand van de zee, het strand en het grootste natuurgebied van Zeeland: De Domeinen. Hier wil je zijn als je komt voor een relaxte sfeer en gezelligheid. 
 
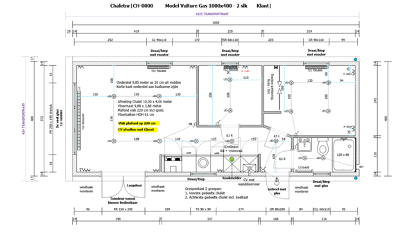
Er is gekozen voor een maximale maat van 10.00 × 4.00 meter. Zo heb je een fijne leefruimte maar blijft er toch nog voldoende ruimte over op de kavel voor het schuurtje en een terras.
In het chalet een stoere keuken met gasfornuis, afzuigkap en inbouw koel-vriescombinatie. Verder een ruime woonkamer, twee slaapkamers met goede bedden en een badkamer met douche, toilet en wastafel. Vanuit de kamer kun je via de openslaande deuren naar de tuin. Kortom: een prima indeling in mooie moderne kleuren.

Sleutelklaar
Naast het plaatsen van een schuurtje is ook de aanleg van de tuin bij de verkoopprijs inbegrepen. Het chalet is qua meubelen helemaal naar eigen wens in te richten. 
Graag maken we de tijd vrij om je meer uitleg te geven over deze combinatie. Bel of mail gerust voor een afspraak!

Jaarhuur & info
Dit gedeelte van camping Ginsterveld is geopend van eind maart tot begin november. De jaarhuur 2026 van deze kavel bedraagt €5.155,- dat is inclusief de toeristenbelasting. Bijkomende kosten zijn een smartcard voor de televisie, een internetabonnement en het verbruik van gas, water en elektra. Commerciële verhuur is beperkt toegestaan en honden zijn niet toegestaan op de camping.

Camping Ginsterveld
Ginsterveld staat al jaren bekend als een gezellige, kindvriendelijke en comfortabele camping, bekroond met 5 sterren én uitgeroepen tot ANWB Top Camping. Kinderen beleven hier één groot avontuur! Meer speelplezier dan je kunt tellen: verspreid over de camping zijn buitenspeeltuinen, een voetbalkooi en een lucht-trampoline. Speel en spetter in het binnen- én buitenbad met glijbaan, peuter- en kleuterbadjes. Waterpret is hier gegarandeerd! Tijdens schoolvakanties en weekends is er een animatieteam dat leuke activiteiten organiseert voor jong én wat oudere kinderen.

Kenmerken