Beschrijving

Rolstoelvriendelijk chalet te koop in Burgh-Haamstede op mooi park 't Torentje recreatie!

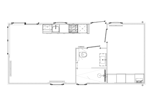
Dit chalet is speciaal gebouwd als rolstoelvriendelijk mantelzorgchalet, maar we bieden dit chalet ook als recreatiechalet aan. Door de extra brede deuren en een ruime living is dit een uitkomst voor iemand die gebruikmaakt van een rolstoel of rollator. Dit luxe afgewerkte chalet met het speels a-symmetrische dak beschikt over een ruime slaapkamer met schuifkastenwand, het raam is voorzien van een rolhor en rolgordijn. De betegelde badkamer met hangtoilet en badmeubel met spiegelkast heeft een antislip vloer. De wand naast het toilet is verstevigd voor het aanbrengen van wandsteunen.

De overzichtelijke keuken is voorzien van een inductiekookplaat, vaatwasser, combimagnetron en een koel-vriescombinatie. De woonkamer heeft veel lichtinval door de raampartij tot op de grond en de schuifpui. Het meubelpakket laat goed zien hoe je de ruimte goed kunt benutten en is eventueel ter overname via de leverancier Zeeuwse Chalets. Het chalet wordt comfortabel verwarmd met centrale verwarming. 
Het chalet is half verdiept geplaatst, dat staat mooi en met een kleine verhoging of aan aanpassing aan de tuin kom je makkelijk het chalet in. De verkoopprijs is een optelsom van het chalet, plaatsen, aansluiten, het afwerken van de onderzijde en een stelpost van de tuinaanleg. Een tuinhuis is niet bij de prijs inbegrepen maar kun je naar eigen wens (laten) plaatsen. 

Dus ben je op zoek naar een chalet op een gezellig en rustig park, met het strand op korte afstand? Maak een afspraak met de stacaravanmakelaar, we laten je deze combinatie graag zien.

Jaarhuur & info
Het park is geopend van 1 maart tot 1 november. De indicatie kavelhuur 2026 bedraagt € €4.742.20,--. Dit is inclusief het voorschot van de toeristenbelasting, kabeltelevisie en internet. Bijkomende kosten zijn het verbruik van gas, water en elektra. Commerciële verhuur is 28 dagen toegestaan en honden zijn niet welkom op de camping.

't Torentje is een mooi, rustig en groen park even buiten het gezellige ringdorp Burgh-Haamstede met de gezelligheid die je op een camping verwacht. En ook wel belangrijk: aan de Schouwse kust, dus dichtbij het heerlijke Noordzeestrand! 't Torentje ligt aan de voet van de Zeepeduinen en naast het bosgebied van het mooie Burgh-Haamstede. 

Monumenten
Naast de mooie landschappen in Burgh-Haamstede, vind je verschillende monumenten in Burgh-Haamstede. De Plompe Toren bijvoorbeeld, deze toren is een overblijfsel van het dorp Koudekerke dat ooit op Schouwen lag en is gratis te bezoeken. In de verte kun je vaak zeehondjes op de zandbank liggen. Ook Slot Haamstede,  een origineel middeleeuws bouwwerk, is een indrukwekkend monument. Binnen neemt alles je mee terug in de tijd: van de sfeervolle ridderzaal met balkenplafond tot de tegelvloer, het meubilair en het wapenbord boven de schouw. Eens binnen kijken? Je kunt het kasteel met het ommuurde slotbos bezoeken op open monumentendagen en tijdens excursies en speciale activiteiten.

Kenmerken